Аренда помещения свободного назначения

230 400 ₽/мес

21 600 ₽ за м²/год

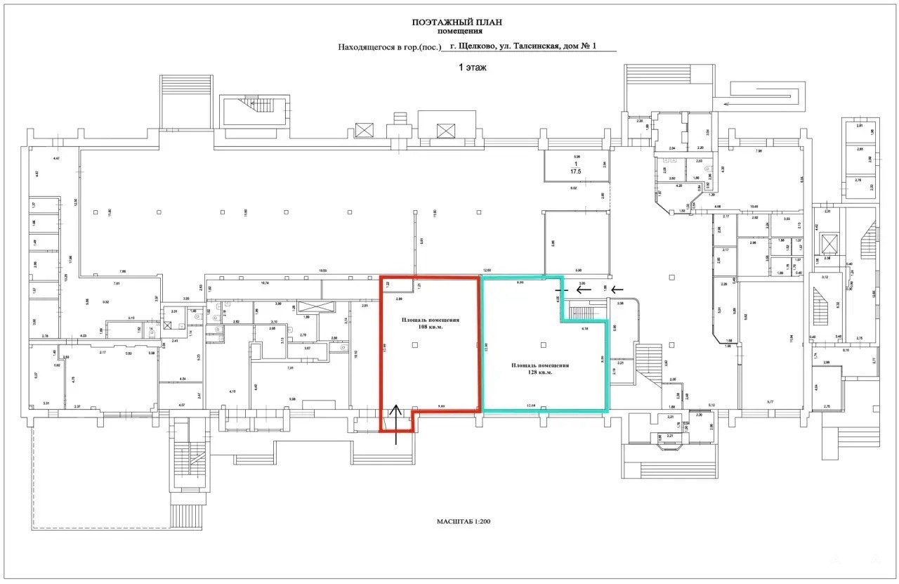
128 м²
Площадь
1/3
Этаж

Поделиться

Добавить в избранное

Номер лота: 13354 Россия, Московская область, городской округ Щёлково, Щёлково, Талсинская улица, 1 Шоссе: Щелковское Общая площадь: 128.00 м.кв. Аренда помещения 128 м² в центре ЩелковоСдается просторное коммерческое помещение в центральной части города, рядом с набережной Клязьма. Площадь: 128 м²⚙️ Характеристики: • Электрическая мощность — 860 кВт (собственная ТП 1200 кВт) • Центральное отопление, водоснабжение и канализация • Приточно-вытяжная вентиляция, кондиционирование • 4 пассажирских и 2 грузовых лифта (600 кг) • Современные системы пожарной безопасности Парковка: автоматизированная, на 150 машиномест Локация: центр города, высокий трафик, удобный подъезд Этаж 1 из 3 Кол-во этажей: 3 ТИП КОММЕРЧЕСКОЙ НЕДВИЖИМОСТИ: ПОМЕЩЕНИЯ СВОБОДНОГО НАЗНАЧЕНИЯ ТИП ДОГОВОРА: прямая аренда Материал дома: Панель Окна: Стеклопакеты Косметический ремонт

Дата обновления: 15 апреля 2026